產品分類
PRODUCT CENTER產品規格更多
| 產品 | 規格 |
|---|---|
| 二波板 | 4320*310*85*3/4 |
| 三波板 | 4320*506*85*3/4 |
| 圓立柱 | 直徑140/114*4.5 |
| 方立柱 | 130*130*6*2540 |
| 防阻塊 | 196*178*200*3/4.5 |
| 托 架 | 70*300*4/4.5 |
| 柱 帽 | 140/114適配 |
| 螺 栓 | M16*35/45/170 |
| 方墊片 | 76*44*4 |
| 單端頭 | R160*3/4 |
點擊數:2072025-09-05 15:42:50 來源: 波形護欄|護欄板價格|高速護欄板廠家-冠縣華安交通
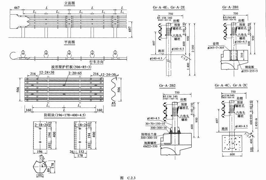
高速公路路側A級兩種波形護欄的構造和尺寸應符合以下規定:
(以下內容標準截取自——公路交通安全設施設計細則(JTGTD81-2017)
三(A)級a型波形梁護欄一般構造示例如圖(雙胞胎防阻塊式):
三(A)級a型波形梁護欄規格參數及適用范圍:
三(A)級b型波形梁護欄一般構造示例如圖(三波大托架式):
三(A)級b型波形梁護欄規格參數及適用范圍:
三(A)級波形梁護欄碰撞試驗變形值:
三(A)級波形梁護欄a型和b型兩種類型的路肩寬度占用距離:
A級a型護欄的路肩寬度占用距離為38.1cm(即85+156+140mm),A級b型護欄的路肩寬度占用距離為26.4cm(即124+140mm)。
三波A級波形護欄造價成本比較如圖:

兩種形式三(A)級波形梁護欄可吸收的碰撞能量同為160KJ,在實際應用中可以根據土路肩寬度、護欄變形、資金成本等情況選用。

